八戸市の松橋不動産。八戸のアパート・マンション・貸家・貸店舗・貸事務所
などの賃貸情報から土地・売家などの売買情報までおまかせください!
〒039-1101 青森県八戸市一番町三丁目
- 情報更新日:2025年09月20日
充実した設備を含めたオールインワン物件♪
- 価 格2,145万円
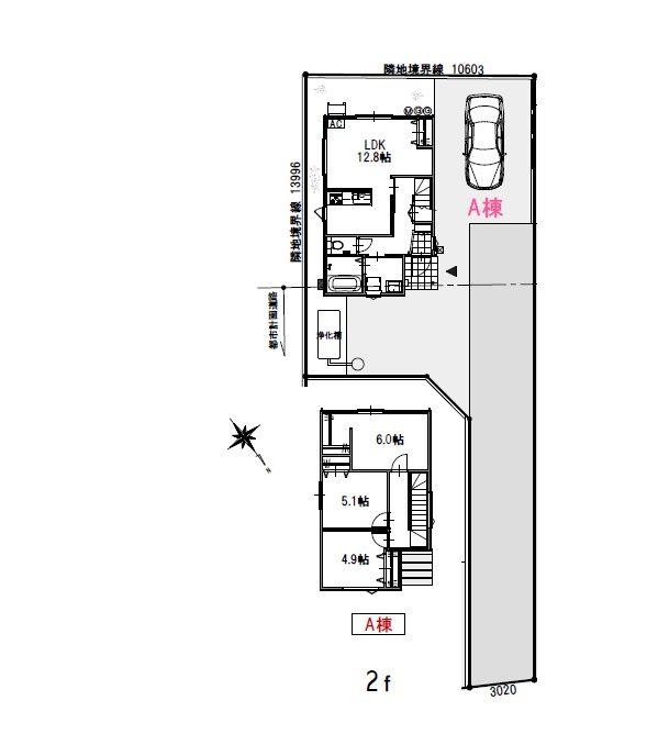
- 間取り3LDK
- 築年月2023年12月(築1年9ヶ月)
- 所在地〒039-1101 青森県八戸市一番町三丁目
- 駐車場敷地内(空あり)(無料)
追加で複数台可(1台迄)
| 取引種目 | 売買建物 |
|---|---|
| 物件種別 | 売戸建住宅 |
| 所在地 | 〒039-1101 青森県八戸市一番町三丁目
|
| 価 格 | 2,145万円[税込] |
| 間 取 | 3LDK(洋:6.0帖×1/5.1帖×1/4.9帖×1 LDK:12.8帖) |
| 交 通 | ・JR八戸線 八戸駅 徒歩7分 ・市営バス・南部バス「西公園前」バス停 徒歩2分 |
| 建物構造 | 木造 地上2階 |
|---|---|
| 取引様態 | 仲介 |
| 主要採光面 | 南西 |
| 築年月 | 2023年12月(築1年9ヶ月) |
| 坪単価 | |
| 現 況 | 未完成 |
| 引渡可能日 | 即引渡可 |
| 地 目 | 宅地 |
| 用途地域 | 第一種住居 |
| 都市計画 | 市街化 |
| 地 勢 | 平坦 |
| 敷地権利 | 所有権 |
| セットバック | 無し |
| 借地料 | |
| 土地面積 | 192.78㎡ (公簿) (58.32坪) |
| 建築面積 | |
| 延床面積 | 77.00㎡ |
| 建ぺい率 | 60% |
| 容積率 | 200% |
| 建築条件 | 無し |
| 私道負担 | |
| 法令上の制限 | |
| 接道状況 | 一方
|
| 学区(小) | 西園小学校 (約1510m) |
| 学区(中) | 三条中学校 (約1390m) |
| トイレ | 独立 洋式 水洗(暖房便座有・洗浄機能有) |
| 風 呂 | 有り(シャワー有)追焚機能有 給湯式 |
| 設 備 | 洗面化粧台(シャワー付)/給湯(ガス)/上水道(公営)/下水道(浄化槽)/ガス(LPガス)/コンロ(ガス)/エアコン/TV付インターホンあり/照明器具/TVアンテナ/洗濯機置場/浴室乾燥機/システムキッチン/シューズボックス/クローゼット/網戸/カーテンレール/全室洋室/ 外水栓/非常時電源供給システム/電気自動車充電用コンセント/郵便ポスト/24時間換気システム/エコジョーズ |
| 備 考 | 【現況優先】※仲介手数料:税抜契約額の2%(消費税別途) ※外構舗装は2024年春工事予定 ※登記費用、借入諸費用、火災保険、水道加入金別途かかります。 売主:(株)ジェイホーム |
| 取扱業者 | 株式会社 松橋不動産 青森県知事免許(7)第2656号 〒039-1166 青森県八戸市根城9丁目4-1 TEL:0178-45-0793 FAX:0178-45-5908 (公社)全日本不動産協会会員 東北地区不動産公正取引協議会加盟事業者 |
|
|
Copyright 2014-2025 Matsuhashi Fudousan Co., Ltd.
All Rights Reserved.
All Rights Reserved.













