★新築★ガレージ付♪明るい南東向きの2階リビング!
| 取引種目 | 売買建物 | 物件種別 | 売戸建住宅 |
|---|---|---|---|
| 所在地 | 〒031-0821 青森県八戸市白銀四丁目
|
||
| 価 格 | 2,595万円[税込] | ||
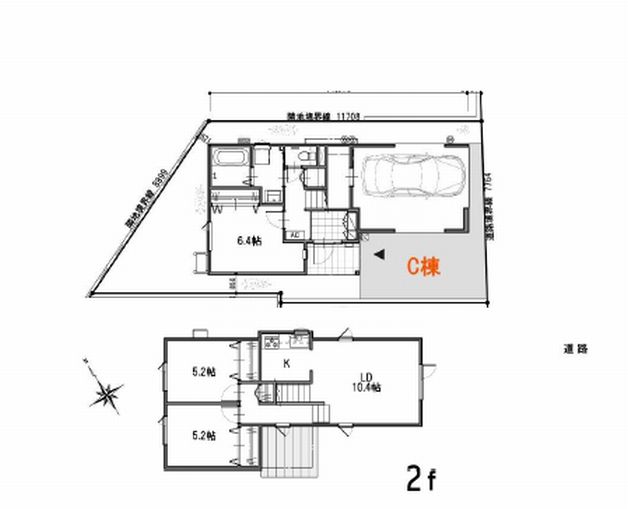
| 間 取 | 3LDK(洋:6.4帖×1/5.2帖×2 LDK:10.4帖) | ||
| 交 通 | 市営バス 「ユニバース白銀店前」バス停 徒歩2分 | ||
| 建物構造 | 木造 地上2階 | ||
|---|---|---|---|
| 取引様態 | 仲介 | 主要採光面 | 南東 |
| 築年月 | 2025年10月 | 坪単価 | |
| 現 況 | 未完成 | 引渡可能日 | 2025年9月末から10月頃予定 |
| 地 目 | 宅地 | 用途地域 | 第一種低層住居専用 |
| 都市計画 | 市街化 | 地 勢 | 平坦 |
| 敷地権利 | 所有権 | セットバック | 無し |
| 借地料 | 土地面積 | 109.02㎡ (公簿) (32.98坪) | |
| 建築面積 | 延床面積 | 79.25㎡ | |
| 建ぺい率 | 50% | 容積率 | 80% |
| 建築条件 | 無し | 私道負担 | |
| 法令上の制限 | |||
| 接道状況 | 一方
|
||
| 学区(小) | 白鷗小学校 (約120m) | 学区(中) | 白銀中学校 (約960m) |
| トイレ | 独立 洋式 水洗(暖房便座有・洗浄機能有) | 風 呂 | 有り(シャワー有) 給湯式 |
| 設 備 | 洗面化粧台(シャワー付)/給湯(ガス)/上水道(公営)/下水道(下水)/コンロ(不明)/エアコン/TV付インターホンあり/照明器具/TVアンテナ/洗濯機置場/浴室乾燥機/システムキッチン/シューズボックス/クローゼット/網戸/カーテンレール/全室洋室/ 外水栓/非常時電源供給システム/電気自動車充電用コンセント/郵便ポスト/24時間換気システム |
||
| 備 考 | 【現況優先】※仲介手数料:税抜契約額の2%(消費税別途) ※登記費用、借入諸費用、火災保険、水道加入金別途かかります。 売主:(株)ジェイホーム |
||
| 取扱業者 | 株式会社 松橋不動産 青森県知事免許(7)第2656号 〒039-1166 青森県八戸市根城9丁目4-1 TEL:0178-45-0793 FAX:0178-45-5908 (公社)全日本不動産協会会員 東北地区不動産公正取引協議会加盟事業者 |
||
|
|||














敷地内(空あり)(無料)
追加で複数台可(1台迄)