★テラスハウス★エアコン2台完備!ペット飼育可能!!
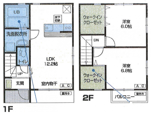
| 建物構造 | 木造 地上2階 戸数4戸 | ||
|---|---|---|---|
| 取引様態 | 仲介 | 主要採光面 | 南東 |
| 築年月 | 2012年3月(築13年9ヶ月) | 坪単価 | |
| 現 況 | 契約更新 | 2年 | |
| 火災保険 | 要加入 1年間 12,000円 | 入居可能日 | 2026年2月下旬 |
| 学区(小) | 白山台小学校 (約1000m) | 学区(中) | 白山台中学校 (約1900m) |
| トイレ | 独立 洋式 水洗(暖房便座有・洗浄機能有) | 風 呂 | 有り(シャワー有)追焚機能有 給湯式 |
| 設 備 | 洗面化粧台(シャワー付)/給湯(ガス)3箇所/上水道(公営)/下水道(下水)/ガス(LPガス)/エアコン/TV付インターホンあり/照明器具/CATV/洗濯機置場/シューズボックス/ウォークインクローゼット/物置/網戸/バルコニー/全室洋室/室内物干し/ 温水ルームヒーター/浴室TV |
||
| 備 考 | 【現況優先】ペット可(猫NG・小型犬のみ)※ペット飼育時には敷金は3ヶ月となります。 ※学区は目安です。正確な情報は役所に確認が必要です。 ※保証委託料は初回契約時、月額賃料(共益費、駐車料等含む)の40%(最低保証料15,000円)(連帯保証人不要プラン)。年額保証料10,000円。月額保証料500円/月。月額保証料には、マモロッカ(近隣トラブル支援サービス)と家賃決済サービス料が含まれます。 ※クレジットカード決済プラン等、その他にもプランがあります。 |
||
| 取扱業者 | 株式会社 松橋不動産 青森県知事免許(7)第2656号 〒039-1166 青森県八戸市根城9丁目4-1 TEL:0178-45-0793 FAX:0178-45-5908 (公社)全日本不動産協会会員 東北地区不動産公正取引協議会加盟事業者 |
||
|
|||






























敷地内(空あり)(無料)
2台目無料